ETW
Startseite | Sitemap | E-Mail

















 
Ein paar Worte zu dieser Unterseite.

Galeriewohnung mit Aussicht in Ostfildern-Kemnat Eugenstr.20

Da die Adresse zu diesen Seiten nur einen ausgesuchten Personenkreis mitgeteilt werden, fehlen die Aufrufe in der Hauptnavigatorleiste. Man gelangt somit zu diesen Seiten nur über den mitgeteilten Link (bei einem Klick auf "Über mich" verschwinden die Einträge).

Letzte Änderung: 09.01.2010

Inhaltsverzeichnis

Beschreibung
Bilder
Grundriss

Anzahl der Besuche: (seit 30.12.2000)
Aktuelle Datum und Zeit bei mir zu Hause: (GMT+1)



Galeriewohnung mit Aussicht

Kontakt

Klaus & Tina Anders
Heumadener Straße 63
73760 Ostfildern
Tel: 0711 / 4597979
Mobil: 0177 / 9768039
E-Mail: klaus.anders@gmx.de

Objektbeschreibung

Die schöne und helle Galeriewohnung wurde im Jahr 1984 erstellt. Die 101 m² Wohnfläche ist großzügig und offen gestaltet und bietet 3 1/2 Zimmer zuzüglich der Galerie. Die Wohnung befindet sich im 3. Stock eines 6 Familienhauses. Der große Balkon mit Markise (ca. 12m²) lädt zum Entspannen ein. Aus der Wohnung haben Sie einen Fernblick in Richtung Schwäbische Alb. Im UG befindet sich ein 20 m² großer Keller. Zur Wohnung gehört auch eine Einzelgarage. Das offene Gebälk, die Galerie und die 4,30 Meter lichte Höhe im Essbereich verleiht der Wohnung ein besonderes Flair. Der hochwertige Sanitärbereich mit Granitfliesen (Blue Pearl) rundet dieses Angebot ab.

Ausstattung

  • Helle Einbauküche (Elektrogeräte 2000).
  • Decken und Wände in weißer Raufasertapete.
  • Buchenparkett in er ersten Ebene.
  • Teppich im Galeriebereich.
  • Tageslichtbad mit Badewanne.
  • Badewanne mit integrierter Dusche.
  • Einbauschrank unterm Treppenaufgang
  • Einbauschrank unter dem Essbereich.
  • Bad und Toilette 2002 modernisiert.
  • Heizung 2002 erneuert.
  • Fliesen Balkon 2002 ausgetauscht.
  • Einzelgarage (Dach 2005 restauriert).

Lage

Die Wohnung liegt in einer ruhigen, zentralen Lage, eines Wohngebietes in Kemnat. Kemnat ist ein Ortsteil von Ostfildern und grenzt an die Landeshauptstadt Stuttgart. Der Ort bietet eine sehr gute Infrastruktur. Sie finden hier Kindergarten, Schule, Lebensmittelladen, Vereine, Schwimmbad und vieles mehr. Sie wohnen in ländlicher Atmosphäre und erreichen mit öffentlichen Verkehrsmitteln in ca. 20min. die Landeshauptstadt oder die Kreisstadt Esslingen.

Eugenstraße 20
73760 Ostfildern

Sonstiges

Das Haus verfügt über einen gemeinsam genutzten Fahrrad- und Trockenraum sowie eine Waschküche. Neben einem Teich bietet die Wohnanlage auch ein Laube für Grillabende.

Wichtiges im Überblick

Zimmer: 4,50 (incl. Galerie)
Wohnfläche ca.: 101,00 qm
Kaufpreis: 219.000 EUR

Weitere Daten

Baujahr: 1984    Objektzustand: Gepflegt
Etage: 3    Qualität der Ausstattung: Gehoben
Etagenanzahl: 2    Heizungsart: Etagenheizung
Schlafzimmer 2    Befeuerungsart: Gas
Badezimmer: 1    Letzte Sanierung: 2002
Keller: 1 (20 qm)    Bezugsfrei ab: 01.12.2009
Balkon/Terrasse: 1       
Einbauküche: 1    Hausgeld * (monatlich): 144,00 EUR
Garage/ Stellplatz: 1    Garage Gas (monatlich): 68,00 EUR
     Strom (monatlich): 78,00 EUR
* Wasser, Müllabfuhr, Kabelfernsehen, Hausverwaltung, Allgemeinstrom

Bilder

Um die Bilder in Originalgröße anzusehen,
klicken Sie das jeweilige Bild an.

Wohnzimmer


Wohnzimmer mit Blick zur Galerie


Schlafzimmer


Esszimmer


Kinderzimmer


Küche


Bad


Galerie


Aussicht


Haus


Garage


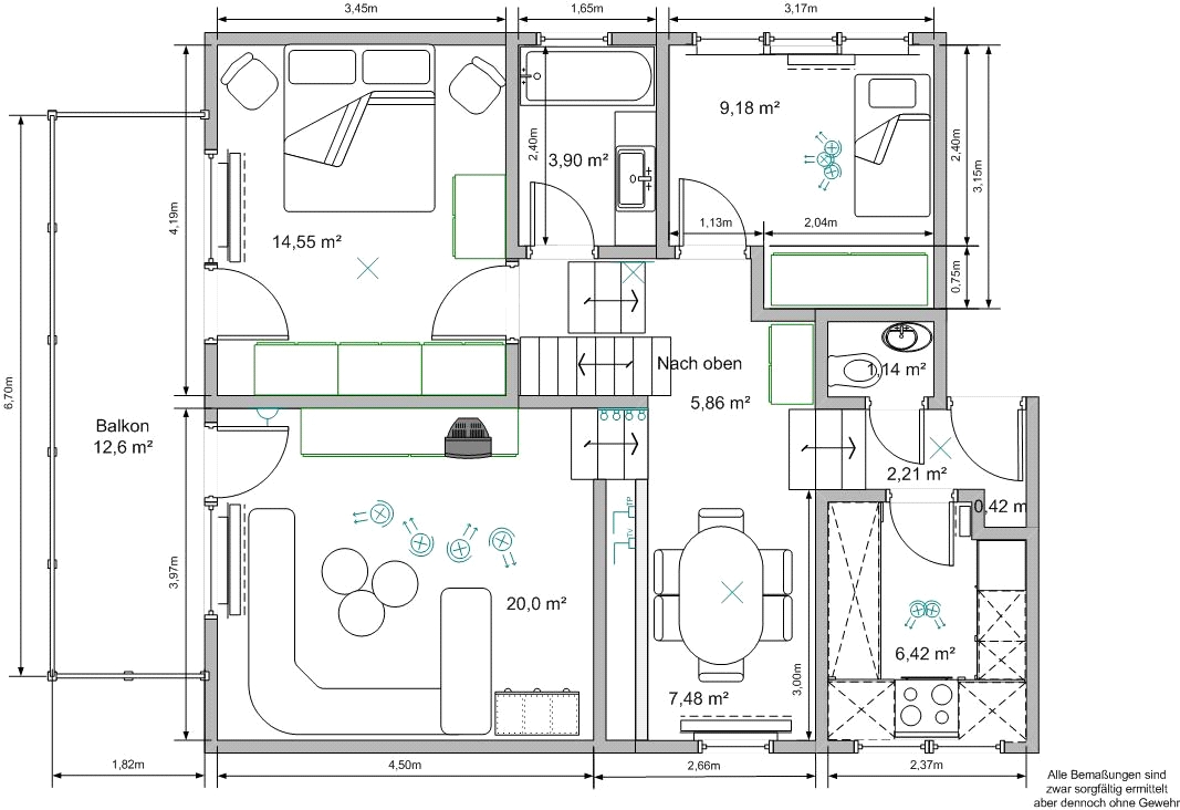
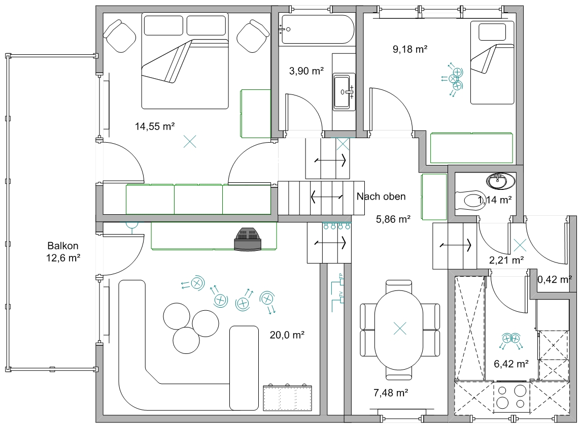
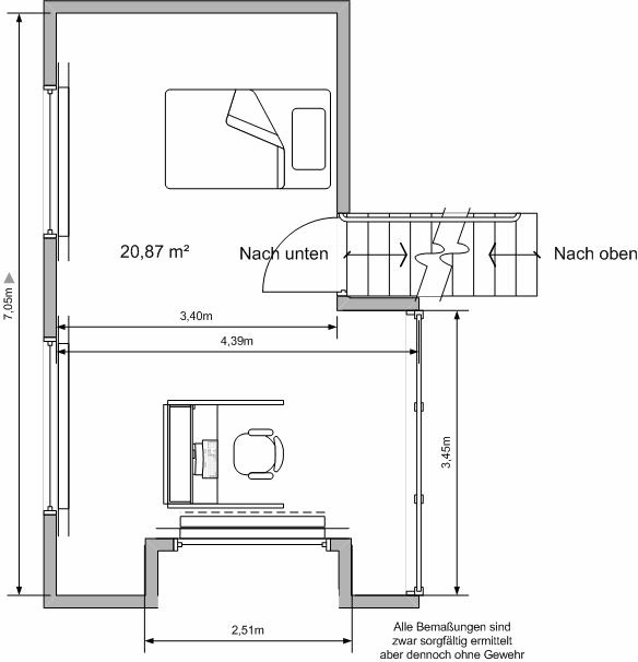
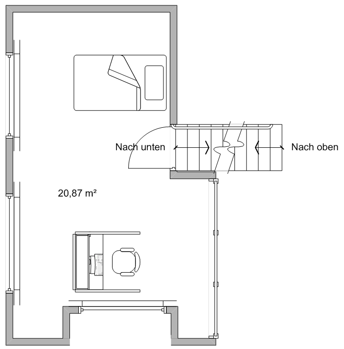
Grundriss

Grundriss unten


oder Grundriss mit Bemaßung

Grundriss oben


oder Grundriss mit Bemaßung